.
.
KÖLTÖZÉS
MIATT Békéscsabán, a Lencsési út
végén, négy emeletesben, csendes környéken eladó egy 59m2-es,
igényesen felújított és karbantartott, egyedi gázos, alacsony rezsis, redőnyös,
két szobás, étkezős, nagy erkélyes lakás – megegyezés szerint bútorokkal, vagy
bútorok nélkül, rugalmas birtokba adási határidővel és fizetési feltételekkel.
A lakás a harmadikon van, de mivel egy szinttel
alacsonyabb a tömb a szokásosnál, így ez a második emeletnek felel meg.
Minden helységben új meleg és hideg burkolat, új
megnövelt terhelhetőségű elektromos vezeték hálózat
(falba süllyesztve), új villanykapcsolók és konnektorok, új redőny és műanyag
nyílászárók, továbbá új fürdőszoba és WC, hatalmas beépített gardróbszekrény,
új konyha, nagy kerékpártároló… a képek magukért beszélnek.
A lakás tartozékai a beépített konyhaszekrény,
elszívó és a gáztűzhely. Igény szerint a képeken látható bútorok mindegyike
kedvező áron eladó.
Minden beépített anyag első osztályú, a túlnyomó
részéről a számla, ill. műbizonylat megőrizve.
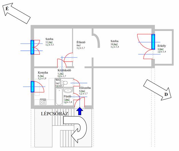
Helységek nettó mérete
|
Szoba: |
12,3m2 |
|
Nappali: |
18,9m2 |
|
Étkező: |
6,0m2 |
|
Közlekedő:
|
1,5m2 |
|
Konyha: |
6,7m2 |
|
Előszoba:
|
6,0m2 |
|
WC: |
1,0m2 |
|
Fürdő: |
2,6m2 |
|
Erkély: |
4,0m2 |
|
Összesen: |
59,0m2 |

KÉPEK


RÉSZLETEK…
Fürdőszoba
·
2 éve teljesen
felújítva, igényes anyagokkal
·
Hansgrohe lefolyó (nem
kell a dugót keresni a vízben, elég a túlfolyónál tekerni)
·
Elektromos
fűtőpatron (radiátorra szerelt patron, külön lehet vele csak a fürdőt
melegíteni, ha még a teljes lakás fűtése nem szükséges, de fürdéshez kell a
meleg)
·
Beépített
mosógép ki- és becsatlakozás szűrő szifonnal
·
Teljes
elektromos vezeték csere
·
Modern, széles
szárnyas kagyló
·
Akril, formatervezett
fürdőkád
·
Törölköző
szárítós radiátor
·
Lamellás
páraelszívó
·
Tükrös, spot lámpás, konnektorral ellátott, méretre szabott, víznek
fokozottan ellenálló fürdőszoba szekrény
·
Igényesen
burkolva első osztályú anyagokkal, bordűr csempékkel
WC
·
Fürdőszobától
külön helységben
·
2 éve teljes
csere
·
Időkapcsolós
szagelszívó beépítve
·
Könnyen
hozzáférhető szerelőfal
Konyha
·
3 éve teljes
felújítás során minden cserélve (burkolat, vezetékek, szekrény, elszívó, nyílászáró,
radiátor, redőny)
·
Teljes
elektromos vezeték hálózat nagyobb keresztmetszetűre cserélve
·
További
vezetékek és konnektorok beépítve
·
Beretta kombi kazán,
konyhabútorba beillesztve, könnyen hozzáférhető
·
Radiátor
cserélve
·
Új
konyhaszekrény, két tálcás mosogatóval, beépített
elszívóval
·
Új műanyag
nyílászáró, biztonsági légbeejtővel (szénmonoxid koncentráció emelkedése esetén
automatikusan kinyílik egy szellőztető retesz)
·
Redőny
·
Konyhaszekrénybe
illesztett gáztűzhely
Szoba
·
Minden vezeték
falba süllyesztve és cserélve
·
2 éve világos,
nagy kopás állóságú bükk laminált lappal burkolva
·
Világos vanília
színű falak
·
Új műanyag
nyílászáró (középen nyíló, bukó nyíló ablak)
·
Redőny
·
Radiátor
cserélve
Étkező
·
Fa áthidalók,
beépített forgatható spot világítással
·
Étkező és
nappali (vagy háló) között igényes, íves műkő ülőke
·
2 éve világos
bükk laminált lappal burkolva
·
Modern
polipropilén (nem törhető) ajtó biztosítja a fényt
Nappali
(vagy háló)
·
Kiugró, nagy
erkély, beton virágládával
·
Redőny + reluxa
·
Kilátás a Veszei erdőre, Királyi hegyekre (időjárástól függően),
illetve igényes kertes sorházi utcára (nem a szemközti tömbre, mint a
lakótelepekre jellemző)
·
Radiátor
cserélve
·
Minden vezeték
falba süllyesztve és cserélve
·
Kapcsolók,
konnektorok cserélve
·
műholdas TV becsatlakozás
padlóba süllyesztve
·
mobil klíma
Előszoba
·
Hatalmas
beépített gardróbszekrény, ruhaliftekkel, fiókokkal, földtől a plafonig érő
tároló helyekkel (nem tartozéka a lakásnak, de igény szerint megállapodás
tárgyát képezi)
·
Bejárati ajtón
heveder zár, illetve biztonsági zár
·
Új elektromos
szekrény, és kismegszakítók
·
Új kaputelefon
Fűtés
·
Egyedi gázos
·
Beretta kombi kazán
·
Új lapradiátorok
a szobákban és a konyhában
·
Törölköző
szárítós radiátor a fürdőben
·
Programozható
termosztát
Egyebek
·
Kaputelefon két
éve cserélve
·
Proxi Chip-es
kapunyitó
·
Kábel TV
becsatlakozás
·
Vezetékes
telefon előkészítés a nappaliban
·
Tároló használat
Lépcsőház
·
Mindig
biztosított parkolási lehetőség
·
1982-en épült
tömb (a Lencsési lakótelepen a legfiatalabb tömb)
·
Csendes,
biztonságos a lépcsőház és a környék
·
1 éve a panel
elemek közötti szigetelés cserélve
·
3 éve festett,
felújított
·
5 éve a teljes
tető újra szigetelve
·
Kábel TV
becsatlakoztatva
·
A lépcsőház
mindig megtakarítással rendelkezik
·
Buszmegálló 60m
·
Reál
élelmiszer bolt 60m
Alacsony
rezsi:
·
Több évre
visszamenően számlákkal bizonyíthatóan alacsony rezsi költségek (gáz, villany,
víz, csatorna díj, közös költségek, egyéb költségek)
A lakáson gyakorlatilag nem kell semmit csinálni, kiköltözést követően kitakarítva biztosítjuk az
Önök rendelkezésére, így azonnal beköltözhető.
Irányár: 8.900eFt helyett 8.400 eFt
Érd.: 06:00-tól 22:00-ig bármikor, hétvégén is
Tel.: 0036/30-525-4645
Mail: lencsesin@citromail.hu